DOM \ SPRZEDAŻ

Wrocław \ Krzyki, ul. Wambierzycka

2 650 000 PLN

Dom

Rodzaj rynku Rynek Wtórny
Typ domu Bliźniak
Powierzchnia 170 m²
Ilość pokoi 5
Typ kuchni Otwarta
Łazienki 2
Umeblowanie
Rodzaj ogrzewania Pompa ciepła
Ciepła woda Pompa ciepła
Rodzaj kanalizacji Miejska
Materiał Drewno
Dach Blachodachówka

Dom II cz.

Rok budowy 1999
Stan nieruchomości -
Liczba pięter 1
Monitoring
Alarm
Garaż/miejsce parkingowe

Opis mieszkania

FOR ENGLISH: CALL US / SEND US AN E-MAIL / GET IN TOUCH ON WHATSAPP

DOM W ZABUDOWIE BLIŹNIACZEJ _ KONSTRUKCJA SZKIELETOWA _ ENERGOOSZCZĘDNY

Na sprzedaż dom w zabudowie bliźniaczej położony przy kameralnej i bezpiecznej ulicy Wambierzyckiej w dzielnicy Krzyki - Gaj. To idealna propozycja dla rodzin szukających przestrzeni, komfortu oraz prywatności.

Dom jest gotowy do zamieszkania od zaraz i nie wymaga większych nakładów finansowych.
Dom oferuje 4 niezależne pokoje rozmieszczone na dwóch funkcjonalnych kondygnacjach, dzięki czemu każdy domownik znajdzie tu swoją prywatną przestrzeń.

- Powierzchnia całkowita domu: 170 m²
- Powierzchnia działki: 390 m2

Dodatkowo do nieruchomości przynależy:
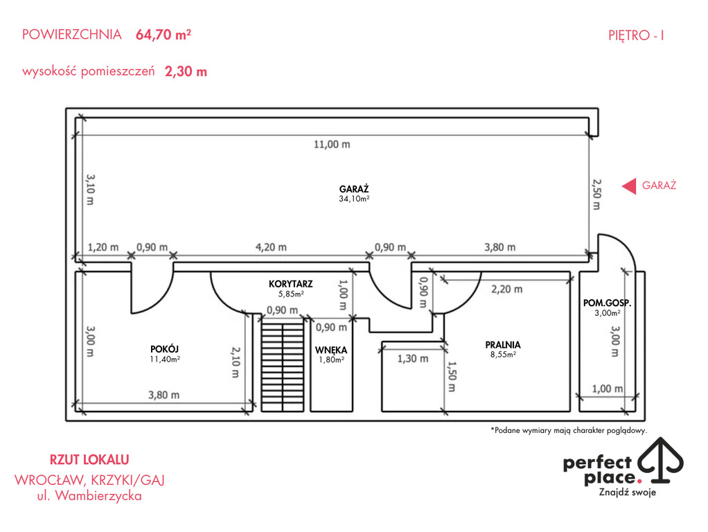
- garaż w bryle budynku bezpośrednio pomieści 2 samochody
- dodatkowe miejsce postojowe przed wjazdem do garażu
- komórkę na sprzęt ogrodowy
- ogród

Jednym z atutów tej nieruchomości jest ogród, znajdują się w nim m.in.:
- taras ze strefą relaksu
- automatyczny system nawadniania
- liczne nasadzenia, m. in pięknie kwitnąca magnolia
To przestrzeń idealna zarówno na rodzinne weekendy, jak i wieczorny relaks po pracy.

Układ pomieszczeń
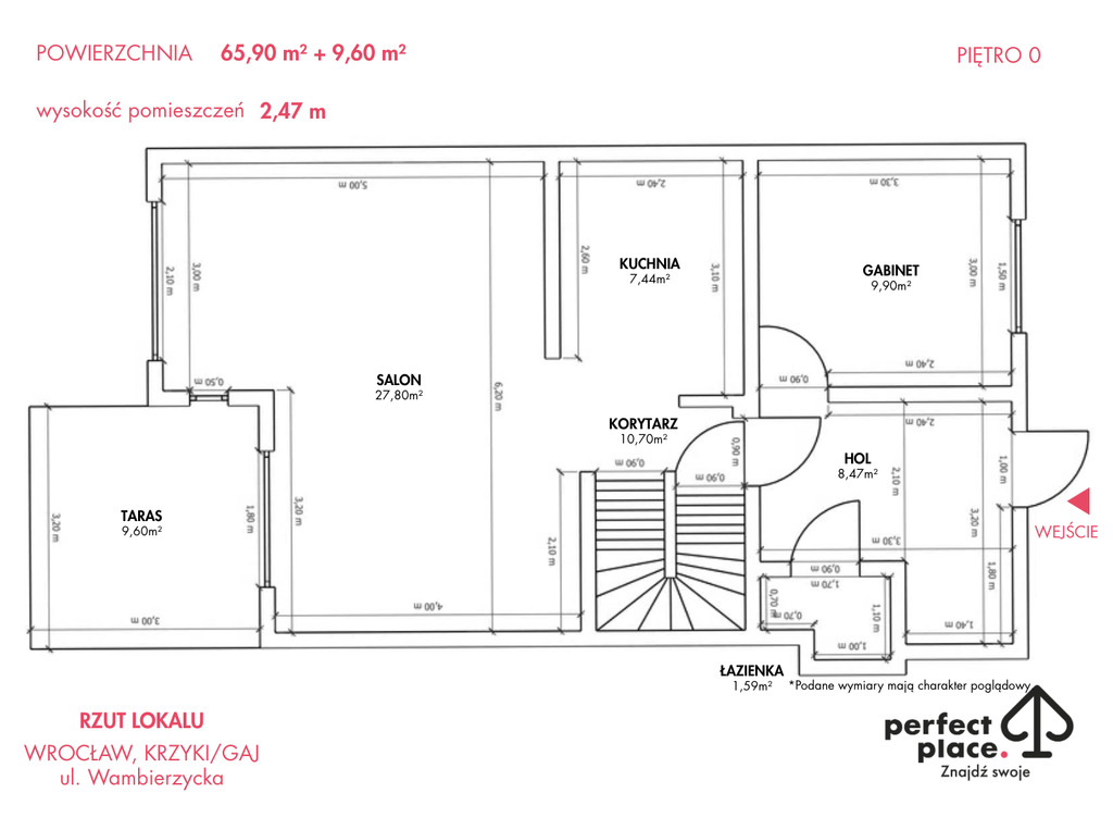
Parter:
- hol wejściowy
- toaleta
- pokój/ gabinet
- aneks kuchenny z możliwością całkowitego otwarcia na salon
- przestronny salon z wyjściem na taras i ogród

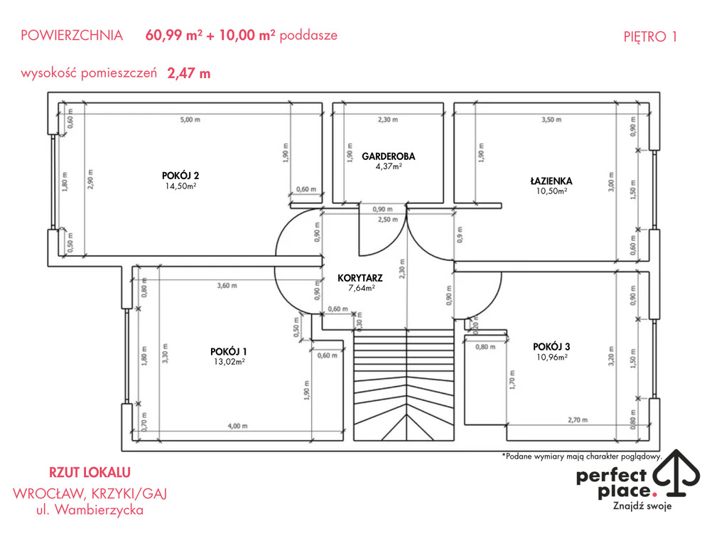
I piętro:
- korytarz
- trzy sypialnie ( w dwóch jest zamontowana klimatyzacja)
- pokój kąpielowy (ok 11 m2) z wanną wolnostojąca oraz prysznicem (płytki z kolekcji Macieja Zienia) - całość zaprojektowana przez projektanta
- wejście na poddasze użytkowe (ok 10 m2)

Piwnica:
- pokój/pomieszczenie gospodarcze
- kotłownia + pralnia
- wejście bezpośrednio do garażu

Najważniejsze elementy wykończenia/ wyposażenia
- drewniane podłogi i schody
- drzwi wewnętrzne drewniane
- liczne punkty świetlne i oświetlenie strefowe
- rolety antywłamaniowe elektryczne
- system alarmowy
- elektryczna brama wjazdowa

Dodatkowe udogodnienia
- klimatyzacja w dwóch sypialniach
- światłowodowy internet
- nowoczesna, bezawaryjna pompa ciepłą,
- dodatkowy garaż na posesji
- klimatyzacja w dwóch sypialniach

Informację techniczne :
- Dach : gont bitumiczny
- Izolacja: wełna mineralna (całość 23cm)
- Podłogi : dąb
- Internet: światłowód
- Nagłośnienie pod kino domowe: w salonie oraz dodatkowo głośniki + radio w pokoju
Lokalizacja

Zielona i spokojna okolica
- Kameralne, zadbane osiedle z dużą ilością zieleni
- Bezpośrednie sąsiedztwo terenów spacerowych i rekreacyjnych (m.in. okolice Wzgórza Gajowego)
- Idealne miejsce dla rodzin oraz osób ceniących ciszę i komfort życia

Lokalizacja łączy spokój przedmieścia z wygodą dużego miasta
- Doskonała komunikacja
- Szybki dojazd do centrum Wrocławia (zarówno autem, jak i komunikacją miejską)
- Blisko przystanki tramwajowe (linie Tramwaj Plus) i autobusowe w odległości 400m
- Dogodne połączenie z obwodnicą śródmiejską i autostradową

Sprawna komunikacja z każdą częścią miasta to jeden z największych atutów tej lokalizacji
- Pełna infrastruktura w zasięgu ręki
- W pobliżu szkoły, przedszkola i placówki medyczne (w tym szpital akademicki)
- Liczne sklepy, punkty usługowe oraz apteki
- Blisko centrum handlowe (Ferio Gaj), Hala targowa Gaj, czy Hala Kupców
Codzienne sprawy można załatwić bez konieczności dalekich dojazdów

- Idealne miejsce do aktywnego życia
- Ścieżki rowerowe i spacerowe
- Tereny rekreacyjne, boiska i obiekty sportowe
Bliskość parków i przestrzeni do wypoczynku

- Lokalizacja sprzyja aktywnemu stylowi życia i rekreacji
- Atrakcyjna i rozwijająca się dzielnica
Gaj to jedna z najszybciej rozwijających się części Wrocławia

- Stały wzrost wartości nieruchomości
- Nowoczesna zabudowa i rozwijająca się infrastruktura
Bardzo dobra lokalizacja zarówno do zamieszkania, jak i inwestycyjnie

Podsumowanie
Połączenie zielonego otoczenia, świetnej komunikacji oraz pełnej infrastruktury miejskiej sprawia, że lokalizacja przy ul. Wambierzyckiej jest jedną z najbardziej atrakcyjnych w południowej części Wrocławia.

CENA: 2 650 000 zł

Opłaty miesięczne:
- prąd:
* okres grzewczy: 1500 zł - 2000 zł
* poza sezonem grzewczym: ok 600 zł
- woda, śmieci: ok 210 zł - 300 zł
- internet

ZAINTERESOWAŁA CIĘ TA OFERTA? ZADZWOŃ, ZNAJDZIEMY IDEALNE MIEJSCE DLA CIEBIE!
Marta Górecka Perfect Place
Tel. kom.: 721 775 876

50-502 Wrocław, ul. Hubska 52-54 lok U4
www.perfectplace.pl
ODWIEDŹ NAS NA FACEBOOK’U: web.facebook.com/perfectplaceyourrelocation/
SPRAWDŹ NASZ INSTAGRAM: www.instagram.com/perfectplace_wroclaw/

Niniejsza oferta nie stanowi oferty w rozumieniu przepisów Kodeksu Cywilnego, a dane w niej zawarte mają jedynie charakter informacyjny i mogą ulec zmianie.

Lokalizacja

Działka

Powierzchnia działki 390 m²
Kształt działki -
Teren ogrodzony -

Opłaty

Cena 2 650 000 PLN
Cena za m2 15 588 PLN

Udogodnienia

Klimatyzacja
Kominek
Internet
Sauna
Basen
Jacuzzi
TV Kablowe

Dostępne w okolicy

Bank
Szkoła
Fitness
Restauracja
Przedszkole
Centrum handlowe

Oferta

ID oferty 398/10443/ODS

Opis mieszkania

FOR ENGLISH: CALL US / SEND US AN E-MAIL / GET IN TOUCH ON WHATSAPP

DOM W ZABUDOWIE BLIŹNIACZEJ _ KONSTRUKCJA SZKIELETOWA _ ENERGOOSZCZĘDNY

Na sprzedaż dom w zabudowie bliźniaczej położony przy kameralnej i bezpiecznej ulicy Wambierzyckiej w dzielnicy Krzyki - Gaj. To idealna propozycja dla rodzin szukających przestrzeni, komfortu oraz prywatności.

Dom jest gotowy do zamieszkania od zaraz i nie wymaga większych nakładów finansowych.
Dom oferuje 4 niezależne pokoje rozmieszczone na dwóch funkcjonalnych kondygnacjach, dzięki czemu każdy domownik znajdzie tu swoją prywatną przestrzeń.

- Powierzchnia całkowita domu: 170 m²
- Powierzchnia działki: 390 m2

Dodatkowo do nieruchomości przynależy:
- garaż w bryle budynku bezpośrednio pomieści 2 samochody
- dodatkowe miejsce postojowe przed wjazdem do garażu
- komórkę na sprzęt ogrodowy
- ogród

Jednym z atutów tej nieruchomości jest ogród, znajdują się w nim m.in.:
- taras ze strefą relaksu
- automatyczny system nawadniania
- liczne nasadzenia, m. in pięknie kwitnąca magnolia
To przestrzeń idealna zarówno na rodzinne weekendy, jak i wieczorny relaks po pracy.

Układ pomieszczeń
Parter:
- hol wejściowy
- toaleta
- pokój/ gabinet
- aneks kuchenny z możliwością całkowitego otwarcia na salon
- przestronny salon z wyjściem na taras i ogród

I piętro:
- korytarz
- trzy sypialnie ( w dwóch jest zamontowana klimatyzacja)
- pokój kąpielowy (ok 11 m2) z wanną wolnostojąca oraz prysznicem (płytki z kolekcji Macieja Zienia) - całość zaprojektowana przez projektanta
- wejście na poddasze użytkowe (ok 10 m2)

Piwnica:
- pokój/pomieszczenie gospodarcze
- kotłownia + pralnia
- wejście bezpośrednio do garażu

Najważniejsze elementy wykończenia/ wyposażenia
- drewniane podłogi i schody
- drzwi wewnętrzne drewniane
- liczne punkty świetlne i oświetlenie strefowe
- rolety antywłamaniowe elektryczne
- system alarmowy
- elektryczna brama wjazdowa

Dodatkowe udogodnienia
- klimatyzacja w dwóch sypialniach
- światłowodowy internet
- nowoczesna, bezawaryjna pompa ciepłą,
- dodatkowy garaż na posesji
- klimatyzacja w dwóch sypialniach

Informację techniczne :
- Dach : gont bitumiczny
- Izolacja: wełna mineralna (całość 23cm)
- Podłogi : dąb
- Internet: światłowód
- Nagłośnienie pod kino domowe: w salonie oraz dodatkowo głośniki + radio w pokoju
Lokalizacja

Zielona i spokojna okolica
- Kameralne, zadbane osiedle z dużą ilością zieleni
- Bezpośrednie sąsiedztwo terenów spacerowych i rekreacyjnych (m.in. okolice Wzgórza Gajowego)
- Idealne miejsce dla rodzin oraz osób ceniących ciszę i komfort życia

Lokalizacja łączy spokój przedmieścia z wygodą dużego miasta
- Doskonała komunikacja
- Szybki dojazd do centrum Wrocławia (zarówno autem, jak i komunikacją miejską)
- Blisko przystanki tramwajowe (linie Tramwaj Plus) i autobusowe w odległości 400m
- Dogodne połączenie z obwodnicą śródmiejską i autostradową

Sprawna komunikacja z każdą częścią miasta to jeden z największych atutów tej lokalizacji
- Pełna infrastruktura w zasięgu ręki
- W pobliżu szkoły, przedszkola i placówki medyczne (w tym szpital akademicki)
- Liczne sklepy, punkty usługowe oraz apteki
- Blisko centrum handlowe (Ferio Gaj), Hala targowa Gaj, czy Hala Kupców
Codzienne sprawy można załatwić bez konieczności dalekich dojazdów

- Idealne miejsce do aktywnego życia
- Ścieżki rowerowe i spacerowe
- Tereny rekreacyjne, boiska i obiekty sportowe
Bliskość parków i przestrzeni do wypoczynku

- Lokalizacja sprzyja aktywnemu stylowi życia i rekreacji
- Atrakcyjna i rozwijająca się dzielnica
Gaj to jedna z najszybciej rozwijających się części Wrocławia

- Stały wzrost wartości nieruchomości
- Nowoczesna zabudowa i rozwijająca się infrastruktura
Bardzo dobra lokalizacja zarówno do zamieszkania, jak i inwestycyjnie

Podsumowanie
Połączenie zielonego otoczenia, świetnej komunikacji oraz pełnej infrastruktury miejskiej sprawia, że lokalizacja przy ul. Wambierzyckiej jest jedną z najbardziej atrakcyjnych w południowej części Wrocławia.

CENA: 2 650 000 zł

Opłaty miesięczne:
- prąd:
* okres grzewczy: 1500 zł - 2000 zł
* poza sezonem grzewczym: ok 600 zł
- woda, śmieci: ok 210 zł - 300 zł
- internet

ZAINTERESOWAŁA CIĘ TA OFERTA? ZADZWOŃ, ZNAJDZIEMY IDEALNE MIEJSCE DLA CIEBIE!
Marta Górecka Perfect Place
Tel. kom.: 721 775 876

50-502 Wrocław, ul. Hubska 52-54 lok U4
www.perfectplace.pl
ODWIEDŹ NAS NA FACEBOOK’U: web.facebook.com/perfectplaceyourrelocation/
SPRAWDŹ NASZ INSTAGRAM: www.instagram.com/perfectplace_wroclaw/

Niniejsza oferta nie stanowi oferty w rozumieniu przepisów Kodeksu Cywilnego, a dane w niej zawarte mają jedynie charakter informacyjny i mogą ulec zmianie.

Lokalizacja

Spotkajmy się

Masz ochotę poznać się i porozmawiać? Odezwij się.